Endereço indisponível Alphaville, Juiz de Fora/ MG
Quartos4
Suites4
Banheiros1
Garagens2
Casa em condomínio fechado com 4 quartos à venda em Alphaville, Juiz de Fora
Descrição
Última atualização: | Ref: 12230
Casa Triplex, em condomínio fechado com total segurança, portaria 24 horas, vigia rondante, condomínio clube completo com piscina, espaço gourmet, quadras esportivas, praça.
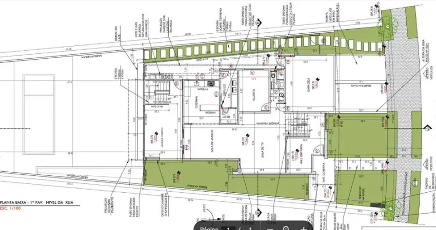
Dividida em 1° pavimento: Hall de entrada, sala para 2 ambientes estar e jantar, em conceito aberto com cozinha, 1 quarto reversível para escritório, banheiro social, área de serviço separada e varanda.
2° pavimento: 3 suítes sendo 1 com closet e hidromassagem.
3° piso , abaixo do nível da rua, área de lazer da casa oferece espaço gourmet integrado a uma área descoberta, piscina com prainha, despejo,e lavabo.
Na garagem podemos estacionar 2 carros cobertos e paralelos e 2 descobertos e paralelos.
Valor IPTU: R$ 308,31
