Rua Rosa De Siqueira, 310, Campestre, Santo André/SP
Área útil111m²
Área total390m²
Quartos3
Suites1
Banheiros3
Garagens2
Sobrado à venda 3 quartos 1 suíte 2 vagas campestre - santo andré - sp
Descrição
Última atualização: | Ref: 196271
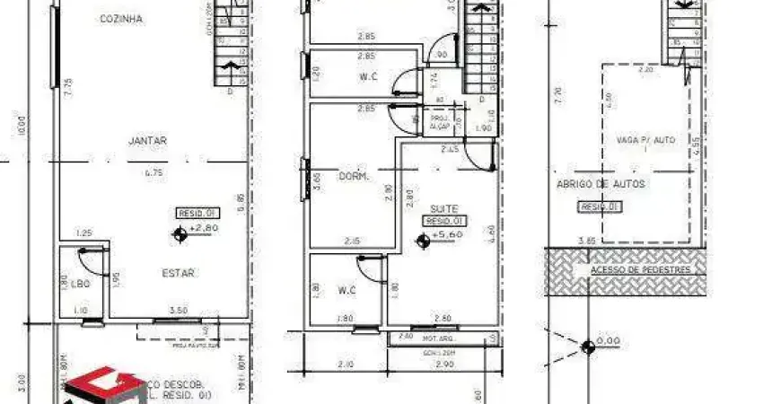
Sobrado em construção no Bairro Campestre!
São 96 metros de área construída + 15 m² de quintal. Na parte térrea, temos 2 vagas de garagem. No 1º pavimento, sala de jantar/estar, lavabo, cozinha americana, área de serviço e quintal, tudo pronto para instalação de uma churrasqueira. No 2º pavimento, são 3 quartos, um deles suíte, e 1 banheiro social. A casa vai receber todo o sistema para instalação de ar-condicionado e água quente.
A rua fica entre a Figueiras e Dom Pedro II, próximo a restaurantes, padaria, hospital veterinário, Hospital Brasil, Shopping Grand Plaza ABC, faculdade UniABC, várias clínicas e consultórios médicos. Às terças-feiras, há feira livre ao lado. Transporte público na porta. Divisa com São Caetano, próximo às estações de trem Utinga e Prefeito Saladino.
Guaíra Imóveis – Desde 1987, conectando pessoas aos seus sonhos com solidez, transparência e um atendimento digitalmente humanizado. Com agências no ABC e em São Paulo e uma equipe com mais de 250 corretores prontos para te ajudar a comprar, vender ou alugar seu imóvel com segurança e agilidade. Todos os preços e condições comerciais estão sujeitos a alterações – Creci 21.699-J.
Perguntas rápidas para o anunciante
Faça perguntas rápidas ao anunciante ou simplesmente escreva a sua própria pergunta.
Proximidades do imóvel
Descubra o que há de melhor ao redor desta casa / sobrado no Campestre, em Santo André.
Veja os pontos próximos na região.
Parques e áreas verdes
Morar no Campestre é ter áreas verdes por perto para relaxar e curtir o dia a dia.
Praça Compositor Assis Valente
270 mPraça César Ladeira
410 mPraça Francisco Pires
560 m
Escolas
Morar no Campestre é estar perto de boas escolas e garantir mais praticidade.
Escola Estadual Marechal Juarez Távora
500 mUni Anhanguera
570 mUniversidade Municipal de São Caetano do Sul - USCS
850 m
Farmácias
Viva com comodidade no Campestre, com farmácias sempre por perto.
Orfarma
630 mFeliz Farma
1.1 kmFarma Alameda
1.1 km
